
> Bathyard Home.
Para una mujer, su familia y sus plantas
Madrid, España
2015
¿Cómo responder a las necesidades cotidianas de una familia, teniendo en cuenta sus singularidades y ofreciendo soluciones micro para un apartamento climáticamente ineficiente y oscuro, y al mismo tiempo haciendo un número mínimo de cambios estructurales?
Bathyard Home es la rehabilitación integral de una vivienda de 130m2 en un edificio de 1900, organizada entorno a un nuevo espacio socio-bioclimático doméstico: el Bathyard. Fue diseñada para una mujer, sus hijos y plantas. Después de varios años viviendo en los suburbios y con hijos ya adultos y en proceso de emanciparse, ella decide comenzar una nueva vida en el centro de Madrid. Sueña con un baño espacioso, con la posibilidad de traer consigo algunas de las plantas de su antigua casa y con un salón donde, entre otras cosas, poder compartir largas sesiones de TV y cine con alguno de sus hijos.
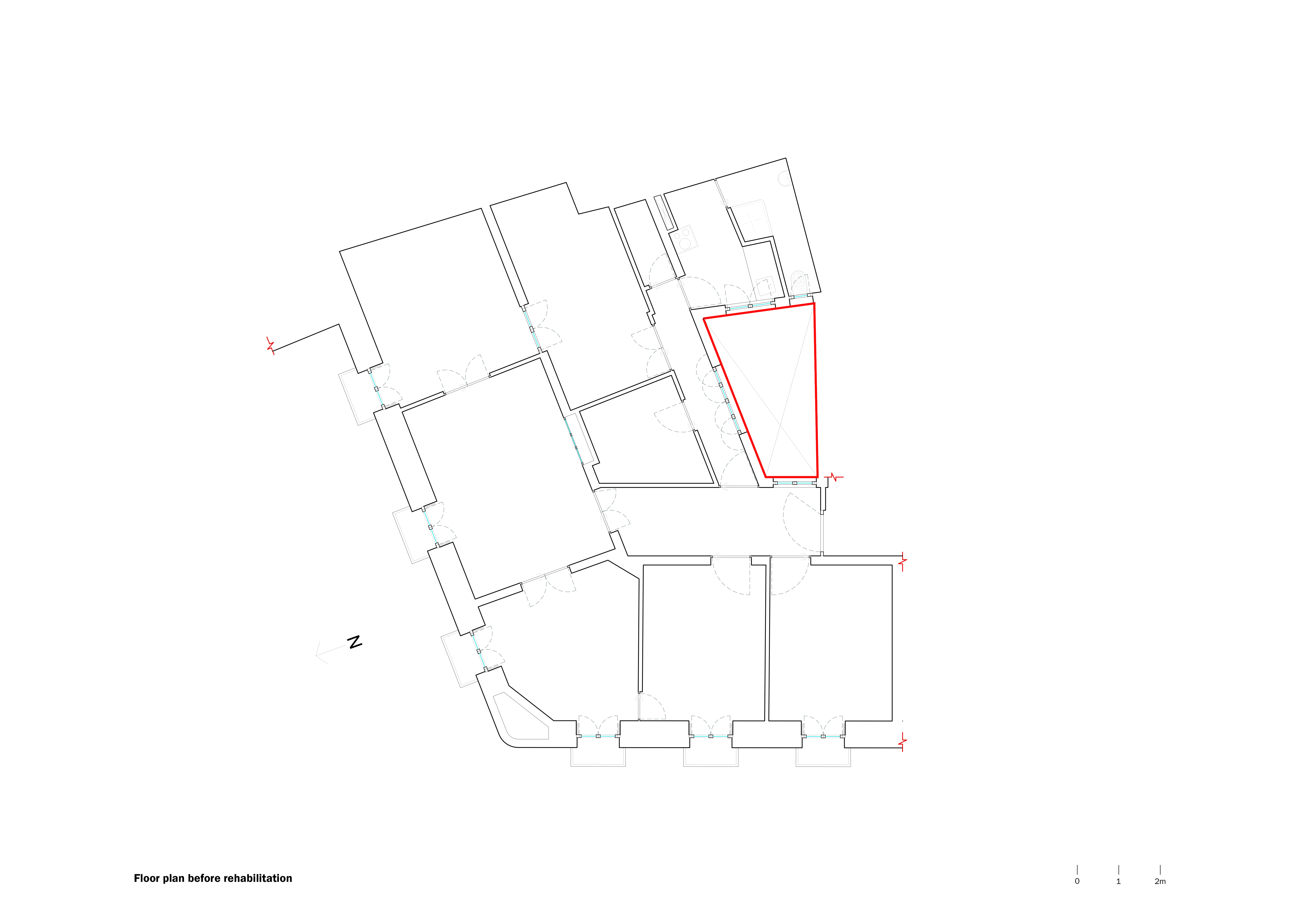
Antes de la rehabilitación, el apartamento era un espacio energéticamente deficiente y oscuro. Estaba orientado casi por completo al norte y al oeste, a excepción de una ventana que da a un patio de luces y es la única orientada al sur, la orientación más favorable climáticamente, pero que sin embargo en este caso estaba vinculada a un pasillo y a un trastero. A la vez que responde a necesidades y deseos específicos, la Bathyard home funciona como un pequeño campo de pruebas para repensar la relación entre la vivienda y el tradicional patio de luces, típico en ciudades mediterráneas densas como Madrid y explorar nuevas formas de dotar a este espacio, generalmente desatendido, de nuevos valores sociales y climáticos. Es decir, que para esta familia funciona como un baño polivalente, a veces de uso individual y a veces de uso compartido. Sin embargo, por medio de ajustes relativamente simples (por ejemplo, retirando la bañera), este espacio “patio trasero” podría acomodar perfectamente otros usos distintos al del baño.









Equipo: Diego Barajas y Camilo García con Martín Orbea y Rebeka Nemeth / Diseño de instalaciones, mediciones y presupuesto: Atipical (Daniel Jabonero, Ángela Ruiz) / Construcción: Atipical (Daniel Jabonero) y Husos (Camilo García) / Consultoría estructural: Mecanismo S.L. y Eugenio Cuesta / Carpintería: Verticales Forme / Instalaciones eléctricas: Divitec / Fotografía y video: Imagen Subliminal (Miguel de Guzmán y Rocío Romero) / Revisión de textos: Medina Whiteman.